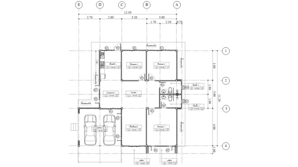
⛑️กำลังก่อสร้าง 🇹🇭ขั้นตอนงานโครงสร้างฐานราก ตัวอาคารบ้านพักอาศัย คสล.ชั้นเดียว จำนวน 3 หลัง
อัพเดตงานโครงสร้าง บ้าน




























ยกเสาเอก เพื่อความสิริมงคล








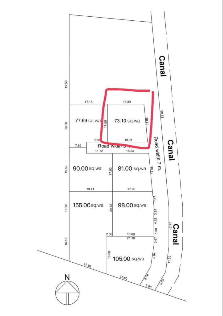
ลงเข็ม ขุดฟุตติ้ง งานฐานราก















⛑️กำลังก่อสร้าง 🇹🇭ขั้นตอนงานโครงสร้างฐานราก ตัวอาคารบ้านพักอาศัย คสล.ชั้นเดียว จำนวน 3 หลัง


















































ใส่ความเห็น